Bồn cầu 1 khối Viglacera là sự lựa chọn hàng đầu của đông đảo gia đình Việt. Nếu quý khách đã mua bồn cầu 1 khối Viglacera và đang muốn tự lắp đặt mà chưa biết làm thế nào thì hãy xem các hướng dẫn cách lắp đặt bồn cầu 1 khối sau để có thể thực hiện tại nhà một cách đơn giản nhé!

Các lưu ý trước khi lắp đặt bồn cầu 1 khối Viglacera
Để thực hiện cách lắp bồn cầu Viglacera hiệu quả giúp cho quá trình sử dụng không gặp phải sự cố, bạn cần chú ý đến các vấn đề sau:
- Kiểm tra bồn cầu xem có bị nứt, vỡ hỏng hóc trong quá trình di chuyển không, các chi tiết của bồn cầu có đầy đủ hay không. Nếu phát hiện hư hỏng hay các dấu hiệu bất thường thì cần liên hệ với đơn vị cung cấp để kiểm tra.
- Đọc kỹ hướng dẫn của nhà sản xuất đi kèm theo sản phẩm như kích thước bồn cầu 1 khối, thông số kỹ thuật của bồn cầu, bộ phụ kiện gồm những gì. Tuyệt đối không tự điều chỉnh, thay thế các bộ phận, phụ kiện bồn cầu
- Nắm được chính xác thứ tự lắp đặt lần lượt để tránh xảy ra sự cố
- Làm sạch đường ống dẫn nước trước khi lắp đặt để đảm bảo không có vật gây tắc nào trong đường ống ảnh hưởng tới quá trình sử dụng bồn cầu
- Việc lắp đặt bởi nhân viên kỹ thuật có chuyên môn sẽ đảm bảo hiệu quả hơn
Chuẩn bị vật dụng cần thiết để lắp đặt bồn cầu
Trước khi thực hiện cách lắp đặt bồn cầu 1 khối, quý khách cần chuẩn bị đầy đủ các vật dụng để thao tác lắp đặt được nhanh chóng và hiệu quả:

- Khăn lau/giẻ lau
- Cờ lê
- Li vô
- Kìm
- Tua vít
- Băng dán
- Thước dây
- Khoan
- Cưa
- Xô chậu
- Vữa/xi măng/Keo
Cách lắp bồn cầu 1 khối Viglacera thực hiện theo các bước sau:
Bước 1: Vệ sinh bề mặt sàn
Bạn cần vệ sinh bề mặt sàn một cách sạch sẽ bằng cách sử dụng vải lau hoặc quần áo cũ. Có thể xả nước cho sạch rồi lau khô lại. Trong cách lắp đặt bồn cầu 1 khối thì bước này không thể bỏ qua để đảm bảo quá trình hoạt động của bồn cầu, tránh những sự cố hư hỏng.
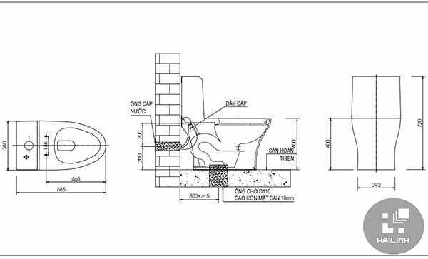
Bước 2: Kiểm tra kích thước, đo chính xác vị trí đặt bồn cầu
Khi lắp đặt bồn cầu đúng vị trí mới đảm bảo được bồn cầu hoạt động hiệu quả. Do đó, bạn cần đo đạc sao cho đúng kích thước bồn cầu 1 khối mà nhà sản xuất đưa ra:

- Từ tường đến tâm lỗ thoát thải trên mặt sàn có khoảng cách tối thiểu là 300mm.
- Từ sàn đến tâm đường cấp nước có khoảng cách tối thiểu là 150 – 200mm
Bước 3: Cố định chân bồn cầu bằng xi măng/silicon
Đầu tiên bạn cần cần đặt ống thoát vào đúng vị trí lỗ chờ. Theo đó, bạn lấy dấu theo vành chân bồn cầu và vị trí các lỗ lắp đặt. Khoan và đặt các bu lông/ vít nở theo vị trí đã lấy dấu.
Tiếp theo, đặt bệ bồn cầu sao cho tâm bồn cầu với tâm lỗ xả của thân bồn cầu. Căn chỉnh mặt phẳng một cách chuẩn xác rồi ấn nhẹ bồn cầu, trét xi măng/vữa/silicon với độ dày 5-7mm ở chân bồn cầu.
Trong cách lắp bồn cầu 1 khối ở bước này, nên sử dụng li vô để đo đạc thật kỹ. sao cho đặt đúng vị trí và cân bằng.

Đợi khoảng 1-2 tiếng, lớp xi măng/ keo sẽ khô lại, lúc này bạn cần lấy giẻ lau chà sạch các vết xi măng/keo thừa đồng thời miết lại lớp vữa này để đảm bảo tính thẩm mỹ cho công trình
Do bồn cầu 1 khối có két nước liền bồn cầu nên bạn bỏ qua được công đoạn lắp két nước, mà sang giai đoạn lắp đặt đường cấp nước
Bước 4: Lắp đặt đường cấp nước cho bồn cầu.
Kiểm tra xem đường ống dẫn nước cấp nước cho bồn cầu đã sạch sẽ chưa đảm bảo nước vào bồn cầu không chứa tạp chất, vật cản gây tắc nghẽn bồn cầu. Tiếp theo, lắp đặt đường cấp nước, kiểm tra áp lực nước phù hợp.

Bước 5: Kiểm tra sau khi lắp đặt
Sau khi thực hiện cách lắp đặt bồn cầu 1 khối xong, hãy chờ khoảng 10 phút cho lớp xi măng được khô cứng hoàn toàn rồi tiến hành kiểm tra bồn cầu bằng cách thử xả để xem xét bồn cầu Viglacera có hoạt động hiệu quả hay không, có bị rò rỉ nước hay tắc ở đâu hay không. Nếu không có vấn đề tức là bạn đã lắp đặt đúng cách và có thể sử dụng ngay.
Tuy là bạn có thể tự lắp đặt bồn cầu 1 khối ngay tại nhà, nhưng showroom Viglacera Hải Linh khuyến cáo khách hàng nên nhờ đội ngũ kỹ thuật lắp đặt để đảm bảo hiệu quả, tránh xảy ra hư hại, sai sót.
Trên đây là cách lắp đặt bồn cầu 1 khối mà Hải Linh muốn chia sẻ với mọi người để giúp mọi người nắm được các bước thực hiện cần thiết. Nếu quý khách cần mua bồn cầu Viglacera hoặc muốn tư vấn các vấn đề xung quanh hãy liên hệ với Hải Linh theo hotline 1900 – 599.828.
